Tầm quan trọng của Layout văn phòng cho thuê
Trong thiết kế và thi công các công trình kiến trúc mặt bằng cho thuê, Layout sơ đồ đóng vai trò rất quan trọng. Bởi bản vẽ văn phòng sẽ tác động đến hơn 50% sự thành công của một dự án công trình. Dựa vào bản vẽ layout này, những kỹ sư thi công có được cái nhìn tổng thể
1. Đảm bảo tính logic cho công trình
Bản vẽ văn phòng cho thuê giúp dự án được thiết kế phù hợp với mong muốn của chủ đầu tư, đồng thời đem lại tính khoa học khi đưa mặt bằng vào sử dụng thực tế.

2. Layout giúp bố trí nội thất hợp lý
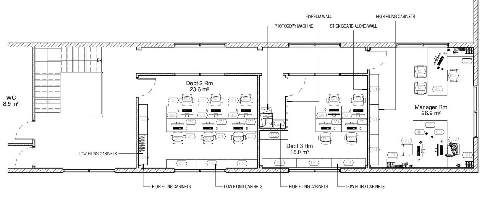
Khi nhìn vào bản vẽ layout văn phòng cho thuê, kỹ sư nắm được vị trí của các trang thiết bị, các khu vực chức năng. Từ đó toà nhà cho thuê được hoàn thiện một cách chính xác nhất.
3. Quản lý dễ dàng công trình xây dựng
Dựa vào bản vẽ layout có sẵn, kỹ sư đánh giá các phương án xây dựng phù hợp nhất cho mỗi toà nhà khác nhau.
4. Thể hiện đầy đủ thông số cơ bản của công trình
Trên layout sẽ thể hiện các thông tin cơ bản của tòa nhà nhưng rất quan trong như: Diện tích chung, số tầng, không gian chức năng, lối đi trong tòa nhà, lối thoát hiểm, vị trí thang máy, độ dày tường, đường ống vệ sinh…
.jpg)
Với tầm quan trọng của layout văn phòng cho thuê trên đây, Thuê Mặt Bằng hy vọng từ đó doanh nghiệp có thể hiểu hơn và đưa ra quyết định chính xác khi thuê văn phòng.
Xem thêm nhiều thông tin mặt bằng cho thuê tại: https://thuematbang.com.vn/tin-tuc/phan-loai-va-cach-doc-so-do-van-phong-cho-thue.html
- Kinh nghiệm thuê mặt bằng kinh doanh cho người mới bắt đầu (tránh lỗ ngay từ đầu)
- Checklist thuê mặt bằng mở quán cafe tại TP.HCM từ A–Z cho người mới bắt đầu
- Top 5 khu vực cho thuê kho bãi logistics
- Kho xưởng Long Bình cho thuê quy mô lớn, hạ tầng hoàn chỉnh, vào hoạt động ngay
- Cho thuê nhà xưởng KCN Hố Nai Biên Hòa Đồng Nai – Dự án hơn 6000m2 phù hợp sản xuất